STONEY RUN SEC II - 054C, RT 73 - VILLAGE OF STONEY RUN, MAPLE SHADE, NJ 08052
STONEY RUN SEC II - 054C, RT 73 - VILLAGE OF STONEY RUN, MAPLE SHADE, NJ 08052
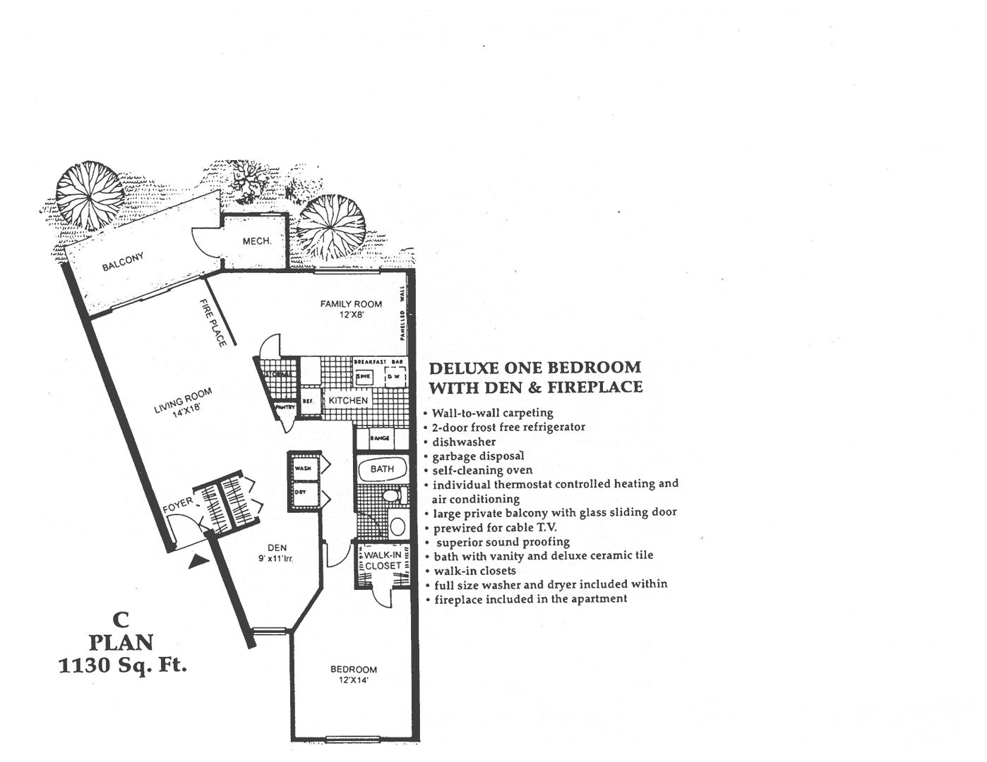
Village of Stoney Run Apartments
Designed with your comfort in mind, VSR allows you to enjoy a natural wood setting. Along with our spacious apartments, you can enjoy our swimming pool, brand new dog park, and playground. Our experienced and highly professional management team always strive to assistant you in every way.
Contact us:












































